1. Volksbank Lilienthal:

Beschreibung: Fertigungsleitung der kompletten Möbeleinrichtung.


2. Jugendhotel Bremervörde:

Beschreibung: Fertigungsleitung Empfangstresen und Tische.


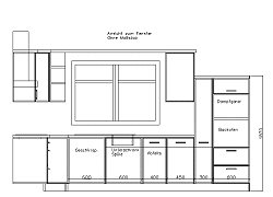
3. Küche: Küchenplanung in Bremervörde

Beschreibung: Planung einer Kücheneinrichtung aus Kirsche mit Massivholzfronten in U-Form, diversen Unterschränken, Apothekerschrank, Hochschränken und Hängeschränken. Der Tresenunterschrank kann von beiden Seiten als Durchreiche benutzt werden (das Geschirr kann von der einen Seite eingeräumt und von der anderen Seite mit den Schiebtüren wieder entnommen werden). Diese Küche wurde von einer Tischlerei angefertigt und montiert.


4. Delikatessengeschäft in Lilienthal

Beschreibung: Bei diesem Projekt ging es um die Anordnung der Tresenanlage .Wie kann der Platzbedarf am günstigsten ausgenutzt werden?
Die Umsetzung wurde in eigener Regie durchgeführt.


5. Umgestaltung Kücheneinrichtung

Küche vorher Küche nachher

Beschreibung: Eine vorhandene Küche, mit vielen offenen Regalen, wurde zu einem geschlossenen Schranksystem von uns vor Ort geplant, umgestaltet und auch in Eigenleistung umgebaut. Es wurden z.B. Eckschränke neu erstellt, das Kochfeld versetzt und die Hängeschränke neu angeordnet. Lediglich die Schrankelemente sind von einer Tischlerei angefertigt worden.


Außerdem wurden von uns noch folgende Arbeiten erstellt: